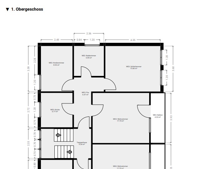
Renovierte 3-Zimmer Wohnung mit Balkon. Diese ansprechend modernisierte Wohneinheit vereint zeitgemäßen Wohnkomfort mit einer durchdachten Raumstruktur und einem attraktiven Gesamtumfeld. Auf ca. 63 m² Wohnfläche entfaltet sich ein harmonisches Raumkonzept mit drei gut geschnittenen Zimmern, das sowohl Paaren als auch kleinen Familien vielseitige Nutzungsmöglichkeiten bietet. Das Herzstück der Wohnung bildet das großzügige, lichtdurchflutete Wohnzimmer mit direktem Zugang zum Balkon, der einen angenehmen Übergang zwischen Innen- und Außenbereich schafft und zu entspannten Stunden im Freien einlädt. Zwei weitere Zimmer lassen sich flexibel als Schlaf-, Kinder- oder Arbeitszimmer gestalten. Eine geräumige Küche sowie ein stilvoll modernisiertes Badezimmer mit Dusche runden das Raumangebot ab. Im Rahmen umfassender Modernisierungsmaßnahmen wurde die Immobilie in wesentlichen Bereichen aufgewertet. Eine neue Gas-Zentralheizung in Brennwerttechnik sorgt in Verbindung mit erneuerten Heizkörpern für eine effiziente Wärmeversorgung. Ein Großteil der Fenster sowie Türen und Zargen wurde erneuert und trägt zu einem angenehmen Wohnklima bei. Darüber hinaus wurden sämtliche Wasser- und Abwasserleitungen ersetzt. Auch die elektrische Unterverteilung wurde erneuert, und das Steckdosen- und Schalterprogramm modernisiert, wodurch sich ein stimmiges und zeitgemäßes Gesamtbild ergibt. Der Innenausbau überzeugt durch eine geschmackvolle und hochwertige Ausführung: Zeitgemäße Bodenbeläge sowie moderne Fliesen verleihen den Räumen eine elegante und zugleich wohnliche Atmosphäre. Das Badezimmer präsentiert sich in einem klaren, modernen Design mit komfortabler Dusche. Ergänzende Maßnahmen wie der Austausch des Treppenhausfensters sowie die Neugestaltung des Eingangsbereichs unterstreichen den gepflegten Gesamteindruck des Objekts. Ein eigener Kellerraum bietet zusätzlichen Stauraum. Die Wohnung befindet sich auf einem großzügigen Grundstück von ca. 800 m² und stellt sowohl für Eigennutzer als auch für Kapitalanleger eine attraktive Investitionsmöglichkeit dar. Im Zuge des Verkaufs werden insgesamt fünf weitere Einheiten innerhalb des Objekts angeboten. Ein besonderer Mehrwert dieser Immobilie liegt in der optionalen Möglichkeit zum Erwerb von Garagen und Stellplätzen. Diese bieten nicht nur zusätzlichen Komfort für Mieter, sondern steigern zugleich nachhaltig die Vermietbarkeit und Rendite der Kapitalanlage. Garagen können für 17.000 € und Außenstellplätze für 6.000 € erworben werden und stellen eine attraktive Ergänzung mit langfristigem Wertpotenzial dar. Verpassen Sie nicht diese Gelegenheit und vereinbaren Sie jetzt schnell einen Besichtigungstermin! Weitere Informationen: Die Highlights im Überblick: Der Eigentümer hat uns beauftragt, den Verkauf seiner Immobilie abzuwickeln. Auf Wunsch des Eigentümers bitten wir von direkten Kontaktaufnahmen abzusehen und Besichtigungstermine nur über die Appelhans Immobilienmakler GmbH zu vereinbaren. Die Ortschaft Hilter am Teutoburger Wald (kurz: Hilter a.T.W.) liegt im südwestlichen Teil des Bundeslandes Niedersachsen, etwa 10 Kilometer südlich der Stadt Osnabrück. Sie gehört zum Landkreis Landkreis Osnabrück und befindet sich am nördlichen Rand des Teutoburger Wald, einer bewaldeten Mittelgebirgsregion. Geografisch zeichnet sich Hilter durch eine abwechslungsreiche Landschaft aus: Im Norden geht das Gebiet in die flacheren Regionen des Osnabrücker Landes über, während sich im Süden und Osten bewaldete Höhenzüge des Teutoburger Waldes anschließen. Diese Lage sorgt für einen reizvollen Übergang zwischen Ebene und Mittelgebirge. Verkehrstechnisch ist Hilter gut angebunden. Die Bundesautobahn A33 verläuft in unmittelbarer Nähe und ermöglicht eine schnelle Verbindung nach Osnabrück sowie in Richtung Bielefeld. Zusätzlich ist die Ortschaft über mehrere Landes- und Kreisstraßen erreichbar, wodurch auch die umliegenden Gemeinden gut angebunden sind. Die Nähe zu Osnabrück macht Hilter zu einem attraktiven Wohnstandort im ländlichen Raum mit guter Erreichbarkeit städtischer Infrastruktur. Gleichzeitig bietet die Lage am Teutoburger Wald zahlreiche Möglichkeiten für Freizeit und Erholung in der Natur, wie Wandern und Radfahren. Insgesamt lässt sich Hilter a.T.W. als naturnah gelegene, verkehrsgünstig angebundene Gemeinde im südlichen Osnabrücker Land charakterisieren. Distanzen: - Bushaltestelle: 220m
Die dargestellte Position der Immobilie ist nur eine ungefähre Angabe. Attraktive 3-Zimmer-Wohnung mit Balkon in Hilter a.T.W.
49176 Hilter, Etagenwohnung zum Kauf
Ausstattung / Merkmale
Energieausweis
Objektdaten
NiedersachsenObjektbeschreibung
Beschreibung
Sofort Bezugsfrei.
Der Energieausweis befindet sich aktuell in Bearbeitung.Ausstattung
Sonstiges
Die Daten im Exposé beruhen auf Angaben des Eigentümers. Für die Richtigkeit und Vollständigkeit wird keine Haftung übernommen. Alle Immobilienangebote sind freibleibend und vorbehaltlich Irrtümer, Zwischenverkauf oder sonstiger Zwischenverwertung.
Gleiche Angaben gelten ebenso für Mietobjekte.Lage
- Supermarkt: 850m
- Apotheke: 650m
- Kindergarten: 450m
- Grundschule: 1,0km
- Eiscafé: 1,3km
- Spielplatz: 190m
- Innenstadt Osnabrück: 22,7kmKontaktdaten
Immobilienmaklerin
49124 Georgsmarienhütte
Energieausweis
wird bei Besichtigung vorgelegt
Objekt-ID
25000_3
Objekttypen
Etagenwohnung, Wohnung
Adresse
49176 Hilter
Wohnfläche ca.
63 m²
Grundstück ca.
800 m²
Zimmer
3
Schlafzimmer
2
Badezimmer
1
Balkone
1
Heizungsart
Zentralheizung
Wesentlicher Energieträger
Gas
Baujahr
1963
Letzte Modernisierung
2026
Zustand
vollsaniert
Ausstattung
gehoben
Heizungsart
Zentralheizung
Area Unit
sqm
Kaufpreis
189.000 EUR
Name
Frau Vanessa Neumann
Adresse
Schulstraße 2
E-Mail Zentrale
Tel. Zentrale
Mobil









