RESERVIERT Lichtdurchflutete 3-Zimmer Gartenwohnung – Renoviert !

49176 Hilter, Erdgeschosswohnung zum Kauf

Ausstattung / Merkmale

  • ✓ Außenstellplatz
  • ✓ Balkon
  • ✓ Dusche
  • ✓ Garage
  • ✓ Garten/Gartennutzung
  • ✓ Keller
  • ✓ Tageslichtbad
  • ✓ WG-geeignet

Energieausweis

  • Energieausweis
    wird bei Besichtigung vorgelegt

Objektdaten

  • Objekt-ID
    25078
  • Objekttypen
    Erdgeschosswohnung, Wohnung
  • Adresse
    49176 Hilter
  • Wohnfläche ca.
    70 m²
  • Grund­stück ca.
    800 m²
  • Zimmer
    3
  • Schlafzimmer
    2
  • Badezimmer
    1
  • Balkone
    1
  • Heizungsart
    Zentralheizung
  • Wesentlicher Energieträger
    Gas
  • Baujahr
    1963
  • Letzte Modernisierung
    2026
  • Zustand
    vollsaniert
  • Ausstattung
    gehoben
  • Stellplätze gesamt
    1
  • Garagen­stellplatz
    1 Stellplatz
  • Verfügbar ab
    Sofort
  • Heizungsart
    Zentralheizung
  • Area Unit
    sqm
  • Kaufpreis
    198.000 EUR

Objekt­beschreibung

Beschreibung

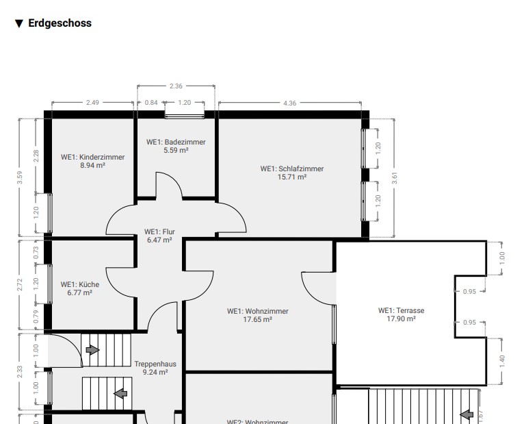
Renovierte 3-Zimmer Erdgeschosswohnung.
mit eigener Terrasse. Sofort Bezugsfrei.

Diese ansprechend modernisierte Wohneinheit vereint zeitgemäßen Wohnkomfort mit einer durchdachten Raumstruktur und einem attraktiven Gesamtumfeld. Auf ca. 70 m² Wohnfläche entfaltet sich ein harmonisches Raumkonzept mit drei gut geschnittenen Zimmern, das sowohl Paaren als auch kleinen Familien vielseitige Nutzungsmöglichkeiten bietet.

Das Herzstück der Wohnung bildet das großzügige, lichtdurchflutete Wohnzimmer mit direktem Zugang zur neu angelegten Terrasse, die zu entspannten Stunden im Freien einlädt. Zwei weitere Zimmer lassen sich flexibel als Schlaf-, Kinder- oder Arbeitszimmer gestalten. Eine geräumige Küche sowie ein stilvoll modernisiertes Badezimmer mit Dusche runden das Raumangebot ab.

Im Rahmen umfassender Modernisierungsmaßnahmen wurde die Immobilie in wesentlichen Bereichen aufgewertet. Eine neue Gas-Zentralheizung in Brennwerttechnik sorgt in Verbindung mit erneuerten Heizkörpern für eine effiziente Wärmeversorgung. Ein Großteil der Fenster sowie Türen und Zargen wurde erneuert und trägt zu einem angenehmen Wohnklima bei. Darüber hinaus wurden sämtliche Wasser- und Abwasserleitungen ersetzt. Das Steckdosen- und Schalterprogramm wurde ebenfalls modernisiert und fügt sich stimmig in das Gesamtbild ein.

Auch der Innenausbau überzeugt durch eine geschmackvolle und hochwertige Ausführung: Zeitgemäße Bodenbeläge sowie moderne Fliesen verleihen den Räumen eine elegante und zugleich wohnliche Atmosphäre. Das Badezimmer präsentiert sich in einem klaren, modernen Design mit komfortabler Dusche.

Ergänzende Maßnahmen wie der Austausch des Treppenhausfensters sowie die Neugestaltung des Eingangsbereichs und der Terrasse unterstreichen den gepflegten Gesamteindruck des Objekts. Ein eigener Kellerraum bietet zusätzlichen Stauraum.

Die Wohnung befindet sich auf einem großzügigen Grundstück von ca. 800 m² und stellt sowohl für Eigennutzer als auch für Kapitalanleger eine attraktive Investitionsmöglichkeit dar. Im Zuge des Verkaufs werden insgesamt fünf weitere Einheiten innerhalb des Objekts angeboten.

Ein besonderer Mehrwert dieser Immobilie liegt in der optionalen Möglichkeit zum Erwerb von Garagen und Stellplätzen. Diese bieten nicht nur zusätzlichen Komfort für Mieter, sondern steigern zugleich nachhaltig die Vermietbarkeit und Rendite der Kapitalanlage. Garagen können für 17.000 € und Außenstellplätze für 6.000 € erworben werden und stellen eine attraktive Ergänzung mit langfristigem Wertpotenzial dar.

Verpasse Sie nicht diese Gelegenheit und vereinbaren Sie schnell einen Besichtigungstermin!

Weitere Informationen:
Der Energieausweis befindet sich aktuell in Bearbeitung und wird zur Besichtigung vorgelegt.

Ausstattung

Die Highlights im Überblick:

  • Neue Zentralheizung
  • Neue Heizkörper
  • Teilweise neue Fenster
  • Neue Türen und Zargen
  • Neue Wasser/Abwasserleitungen
  • Komplett renoviert

Sonstiges

Der Eigentümer hat uns beauftragt, den Verkauf seiner Immobilie abzuwickeln. Auf Wunsch des Eigentümers bitten wir von direkten Kontaktaufnahmen abzusehen und Besichtigungstermine nur über die Appelhans Immobilienmakler GmbH zu vereinbaren.
Die Daten im Exposé beruhen auf Angaben des Eigentümers. Für die Richtigkeit und Vollständigkeit wird keine Haftung übernommen. Alle Immobilienangebote sind freibleibend und vorbehaltlich Irrtümer, Zwischenverkauf oder sonstiger Zwischenverwertung.
Gleiche Angaben gelten ebenso für Mietobjekte.

Lage

Die Ortschaft Hilter am Teutoburger Wald (kurz: Hilter a.T.W.) liegt im südwestlichen Teil des Bundeslandes Niedersachsen, etwa 10 Kilometer südlich der Stadt Osnabrück. Sie gehört zum Landkreis Landkreis Osnabrück und befindet sich am nördlichen Rand des Teutoburger Wald, einer bewaldeten Mittelgebirgsregion.

Geografisch zeichnet sich Hilter durch eine abwechslungsreiche Landschaft aus: Im Norden geht das Gebiet in die flacheren Regionen des Osnabrücker Landes über, während sich im Süden und Osten bewaldete Höhenzüge des Teutoburger Waldes anschließen. Diese Lage sorgt für einen reizvollen Übergang zwischen Ebene und Mittelgebirge.

Verkehrstechnisch ist Hilter gut angebunden. Die Bundesautobahn A33 verläuft in unmittelbarer Nähe und ermöglicht eine schnelle Verbindung nach Osnabrück sowie in Richtung Bielefeld. Zusätzlich ist die Ortschaft über mehrere Landes- und Kreisstraßen erreichbar, wodurch auch die umliegenden Gemeinden gut angebunden sind.

Die Nähe zu Osnabrück macht Hilter zu einem attraktiven Wohnstandort im ländlichen Raum mit guter Erreichbarkeit städtischer Infrastruktur. Gleichzeitig bietet die Lage am Teutoburger Wald zahlreiche Möglichkeiten für Freizeit und Erholung in der Natur, wie Wandern und Radfahren.

Insgesamt lässt sich Hilter a.T.W. als naturnah gelegene, verkehrsgünstig angebundene Gemeinde im südlichen Osnabrücker Land charakterisieren.

Distanzen:

- Bushaltestelle: 220m
- Supermarkt: 850m
- Apotheke: 650m
- Kindergarten: 450m
- Grundschule: 1,0km
- Eiscafé: 1,3km
- Spielplatz: 190m
- Innenstadt Osnabrück: 22,7km

Die dargestellte Position der Immobilie ist nur eine ungefähre Angabe.

Kontaktdaten

Jasmin Dodo, Appelhans Immobilienmakler GmbH

Direktanfrage

* Pflichtangaben
 SSL-verschlüsselt