Willkommen in Ihrer neuen Traumimmobilie! Diese moderne Doppelhaushälfte besticht durch ihre zeitgemäße Architektur und energieeffiziente Bauweise. Auf einem großzügigen Grundstück von 278 qm erstreckt sich die Wohnfläche von ca. 120 qm über zwei Vollgeschosse. Eckdaten: Grundstücksgröße: 278 qm Lage: Ausstattung: Die Immobilie wird nach höchsten Standards gebaut und bietet Ihnen u.a.: Offene, lichtdurchflutete Wohnräume Besonderheiten: Dank des KfW 40 Standards profitieren Sie von niedrigen Energiekosten und einer hohen Umweltfreundlichkeit. Die Wärmepumpe sorgt für eine effiziente Heizungsversorgung und trägt zur Reduzierung Ihres CO2-Fußabdrucks bei. Das Carport bietet Ihnen nicht nur einen geschützten Stellplatz für Ihr Fahrzeug, sondern auch zusätzlichen Stauraum für Fahrräder oder Gartengeräte. Die zu errichtenden Doppelhaushälften unterliegen einer Sozialquote. Nur Käufer, die die sozialen Kriterien erfüllen, sind später zum bewohnen berechtigt. Weitere Informationen hierzu finden Sie unter https://service.osnabrueck.de/dienstleistungen/-/egov-bis-detail/dienstleistung/6027/show Diese top Neubau-Doppelhaushälfte hat Sie überzeugt? Kontaktieren Sie uns für einen Beratungstermin! Der Energieausweis befindet sich zurzeit in Bearbeitung. Die Highlights im Überblick: Bodenbeläge in Wohnräumen und Malerarbeiten sind nicht Vertragsbestandteile des Angebotes, können allerdings optional erbracht werden. Bäder und Abstellräume erhalten als Bodenbelag Fliesen. Der Eigentümer hat uns beauftragt, den Verkauf seiner Immobilie abzuwickeln. Auf Wunsch des Eigentümers bitten wir von direkten Kontaktaufnahmen abzusehen und Besichtigungstermine nur über die Appelhans Immobilienmakler GmbH zu vereinbaren. Gretesch, Lüstringen und Darum wurden 1966 zusammengefasst und 1972 schließlich der Stadt Osnabrück zugeschlagen. Kein Stadtteil hat mehr Fläche. Der Stadtteil wirkt teilweise sehr ländlich – obwohl es in die Innenstadt nicht sehr weit ist. Darum-Gretesch-Lüstringen ist ein gefragter Stadtteil. Teilweise schmiegen sich villenartige Häuser an die Hügel und einige Hausbesitzer haben schöne Ausblicke über die Stadt. In diesem Stadtteil wohnen Menschen mit allen denkbaren finanziellen Möglichkeiten. Manche nennen ihn auch Osnabrücks zweiten Westerberg – auch eine der bevorzugten Wohnlagen der Stadt. Über die Abfahrt Lüstringen an der Autobahn 33 ist der Stadtteil gut angebunden. Distanzen: - Bushaltestelle: 240 m
49086 Osnabrück, Niedersachsen, Deutschland (auf Google Maps ansehen)
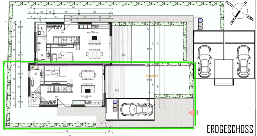
Bauvorhaben: Attraktive Doppelhaushälfte in gefragter Lage
49086 Osnabrück, Doppelhaushälfte zum Kauf
Ausstattung / Merkmale
Energieausweis
Objektdaten
49086 Osnabrück
NiedersachsenObjektbeschreibung
Beschreibung
Wohnfläche: ca. 120 qm
Geschosse: 2 Vollgeschosse
Dachform: Flachdach
Energieeffizienz: KfW 40 Standard
Heizung: Wärmepumpe
Parkmöglichkeiten: Carport
Die Doppelhaushälfte befindet sich in einer sehr guten Lage am Lüstringer Berg, einem der begehrtesten Wohngebiete der Region. Hier genießen Sie nicht nur eine ruhige Nachbarschaft, sondern auch eine hervorragende Anbindung an die Innenstadt sowie an Schulen, Kindergärten und Einkaufsmöglichkeiten. Die umliegende Natur lädt zu Spaziergängen und Outdoor-Aktivitäten ein.
Fußbodenheizung in allen Räumen für ein angenehmes Raumklima
Moderne Bäder mit hochwertigen SanitärausstattungenAusstattung
Sonstiges
Die Daten im Exposé beruhen auf Angaben des Eigentümers. Für die Richtigkeit und Vollständigkeit wird keine Haftung übernommen. Alle Immobilienangebote sind freibleibend und vorbehaltlich Irrtümer, Zwischenverkauf oder sonstiger Zwischenverwertung.
Gleiche Angaben gelten ebenso für Mietobjekte.Lage
- Supermarkt: 2 km
- Apotheke: 1,6 km
- Kindergarten: 700 m
- Grundschule: 700 m
- Eiscafé: 1,5 km
- Spielplatz: 1,6 km
- Innenstadt Osnabrück: 7,3 kmKontaktdaten
49124 Georgsmarienhütte
Energieausweis
wird bei Besichtigung vorgelegt
Objekt-ID
24668
Objekttypen
Doppelhaushälfte, Haus
Adresse
(Darum / Gretesch / Lüstringen (Stadtteil))
Wohnfläche ca.
120 m²
Grundstück ca.
278 m²
Zimmer
4
Schlafzimmer
3
Badezimmer
1
Balkone
1
Zustand
Erstbezug
Ausstattung
gehoben
Stellplätze gesamt
1
Carportstellplatz
1 Stellplatz
Area Unit
sqm
Käuferprovision
Provisionsfrei
Kaufpreis
433.000 EUR
Name
Herr Oliver Schöps
Adresse
Schulstraße 2
E-Mail Zentrale
Tel. Zentrale



